MADP90La4/8
Codice
Potenza KW
Velocita rpm
Corrente A(V.400)
Coppia Cn Nm
Rendimento n%
Fattore di potenza FI
MADP90La4/8
0,97/0,52
1380/680
2,4/2,5
6,7/7,3
70/50%
0,87/0,61
Codice
MADP90La4/8
Potenza KW
0,97/0,52
Velocita rpm
1380/680
Corrente A(V.400)
2,4/2,5
Coppia Cn Nm
6,7/7,3
Rendimento n%
70/50%
Fattore di potenza FI
0,87/0,61
Forme costruttive disponibili
MAB3
MAB5
MAB14


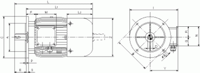
TYPE MEC | A | B | C | D | E | F | G | G 1 | H | I | L | L 1 | L 2 | M | N | O | P | Q | R | U | U 1 | V | K | X | Y | Z |
56 | 90 | 71 | 36 | 9 | 20 | 30 | 166 | 110 | 56 | 162 | 213 | 193 | 74 | 92 | 92 | 115 | M4 | 34 | 58 | 90 | 108 | 9 | 6 | 11 | 110 | 110 |
63 | 100 | 80 | 42 | 11 | 23 | 25 | 178 | 125 | 63 | 175 | 241 | 218 | 85 | 92 | 92 | 138 | M4 | 34 | 58 | 105 | 120 | 10 | 7 | 12 | 115 | 123 |
71 | 112 | 90 | 45 | 14 | 30 | 25 | 195 | 139 | 71 | 192 | 276 | 246 | 98 | 92 | 92 | 138 | M4 | 40 | 52 | 108 | 136 | 11 | 7 | 12 | 124 | 138 |
80 | 125 | 100 | 50 | 19 | 40 | 30 | 221 | 157 | 80 | 218 | 317 | 277 | 116 | 110 | 110 | 168 | M5 | 50 | 60 | 125 | 154 | 11 | 9,5 | 17,5 | 141 | 156 |
90S | 140 | 100 | 56 | 24 | 50 | 33 | 236 | 177 | 90 | 233 | 342 | 292 | 125 | 110 | 110 | 168 | M5 | 50 | 60 | 130 | 174 | 13 | 9,5 | 17,5 | 146 | 176 |
90L | 140 | 125 | 56 | 24 | 50 | 33 | 236 | 177 | 90 | 233 | 366 | 316 | 125 | 110 | 110 | 194 | M5 | 50 | 60 | 155 | 174 | 13 | 9,5 | 17,5 | 146 | 176 |
100 | 160 | 140 | 63 | 28 | 60 | 40 | 257 | 196 | 100 | 253 | 430 | 370 | 155 | 110 | 110 | 210 | M6 | 55 | 55 | 175 | 192 | 15 | 11,2 | 21,2 | 157 | 194 |
112 | 190 | 140 | 70 | 28 | 60 | 45 | 281 | 220 | 112 | 282 | 466 | 406 | 175 | 110 | 110 | 224 | M6 | 55 | 55 | 175 | 226 | 15 | 11,2 | 21,2 | 169 | 220 |
132S | 216 | 140 | 89 | 38 | 80 | 50 | 327 | 260 | 132 | 325 | 540 | 460 | 220 | 124 | 124 | 241 | M8 | 62 | 62 | 180 | 260 | 17,5 | 11,2 | 21,2 | 195 | 256 |
132L | 216 | 178 | 89 | 38 | 80 | 50 | 327 | 260 | 132 | 325 | 580 | 500 | 220 | 124 | 124 | 280 | M8 | 62 | 62 | 218 | 260 | 17,5 | 11,2 | 21,2 | 195 | 256 |
160S | 254 | 210 | 108 | 42 | 110 | 90 | 392 | 315 | 160 | 390 | 730 | 620 | 266 | 185 | 172 | 330 | M10 | 86 | 86 | 260 | 318 | 20 | 13 | 23 | 232 | 310 |
160L | 254 | 254 | 108 | 42 | 110 | 90 | 392 | 315 | 160 | 390 | 774 | 664 | 266 | 185 | 172 | 374 | M10 | 86 | 86 | 304 | 318 | 20 | 13 | 23 | 232 | 310 |

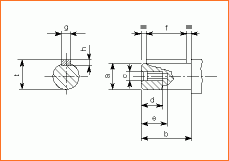
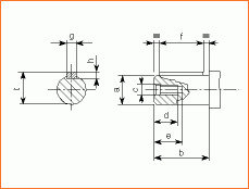
TYPE MEC | a | b | c | d | e | f | g | h | t |
56 | 9 | 20 | M4 | 10 | 14 | 15 | 3 | 3 | 10,2 |
63 | 11 | 23 | M4 | 10 | 14 | 15 | 4 | 4 | 12,5 |
71 | 14 | 30 | M5 | 13 | 18 | 20 | 5 | 5 | 16 |
80 | 19 | 40 | M6 | 16 | 22 | 30 | 6 | 6 | 21,5 |
90 | 24 | 50 | M8 | 20 | 28 | 35 | 8 | 7 | 27 |
100/112 | 28 | 60 | M10 | 25 | 35 | 45 | 8 | 7 | 31 |
132 | 38 | 80 | M12 | 32 | 44 | 60 | 10 | 8 | 41 |
160 | 42 | 110 | M16 | 32 | 44 | 90 | 12 | 8 | 45 |


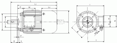
TYPE MEC | A | B | C | D | E | F | G | I | L | L 1 | L 2 | M | N | P | Q | R | S | Y | Z |
56 | 80 | 100 | 120 | 9 | 20 | 30 | 7 | 170 | 213 | 193 | 74 | 92 | 92 | 3 | 34 | 58 | 9 | 110 | 110 |
63 | 95 | 115 | 140 | 11 | 23 | 25 | 10 | 185 | 241 | 218 | 85 | 92 | 92 | 3 | 34 | 58 | 10 | 115 | 123 |
71 | 110 | 130 | 160 | 14 | 30 | 25 | 10 | 204 | 276 | 246 | 98 | 92 | 92 | 3,5 | 40 | 52 | 10 | 124 | 138 |
80 | 130 | 165 | 200 | 19 | 40 | 30 | 12 | 241 | 317 | 277 | 116 | 110 | 110 | 3,5 | 50 | 60 | 10 | 141 | 156 |
90S | 130 | 165 | 200 | 24 | 50 | 33 | 12 | 246 | 342 | 292 | 125 | 110 | 110 | 3,5 | 50 | 60 | 10 | 146 | 176 |
90L | 130 | 165 | 200 | 24 | 50 | 33 | 12 | 246 | 366 | 316 | 125 | 110 | 110 | 3,5 | 50 | 60 | 10 | 146 | 176 |
100 | 180 | 215 | 250 | 28 | 60 | 40 | 14,5 | 282 | 430 | 370 | 155 | 110 | 110 | 4 | 55 | 55 | 15 | 157 | 194 |
112 | 180 | 215 | 250 | 28 | 60 | 45 | 14,5 | 295 | 466 | 406 | 175 | 110 | 110 | 4 | 55 | 55 | 15 | 170 | 220 |
132S | 230 | 265 | 300 | 38 | 80 | 50 | 14,5 | 345 | 540 | 460 | 220 | 124 | 124 | 4 | 62 | 62 | 18 | 195 | 256 |
132L | 230 | 265 | 300 | 38 | 80 | 50 | 14,5 | 345 | 580 | 500 | 220 | 124 | 124 | 4 | 62 | 62 | 18 | 195 | 256 |
160S | 250 | 300 | 350 | 42 | 110 | 90 | 18,5 | 407 | 730 | 620 | 266 | 185 | 172 | 5 | 86 | 86 | 14 | 232 | 310 |
160L | 250 | 300 | 350 | 42 | 110 | 90 | 18,5 | 407 | 774 | 664 | 266 | 185 | 172 | 5 | 86 | 86 | 14 | 232 | 310 |

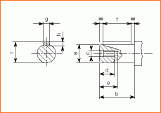
TYPE MEC | a | b | c | d | e | f | g | h | t |
56 | 9 | 20 | M4 | 10 | 14 | 15 | 3 | 3 | 10,2 |
63 | 11 | 23 | M4 | 10 | 14 | 15 | 4 | 4 | 12,5 |
71 | 14 | 30 | M5 | 13 | 18 | 20 | 5 | 5 | 16 |
80 | 19 | 40 | M6 | 16 | 22 | 30 | 6 | 6 | 21,5 |
90 | 24 | 50 | M8 | 20 | 28 | 35 | 8 | 7 | 27 |
100/112 | 28 | 60 | M10 | 25 | 35 | 45 | 8 | 7 | 31 |
132 | 38 | 80 | M12 | 32 | 44 | 60 | 10 | 8 | 41 |
160 | 42 | 110 | M16 | 32 | 44 | 90 | 12 | 8 | 45 |


TYPE MEC | A | B | C | D | E | F | G | I | L | L 1 | L 2 | M | N | P | Q | R | S | Y | Z |
50L | 50 | 65 | 80 | 9 | 20 | 25 | M5 | 128 | 202 | 182 | 86 | 64 | 64 | 2 | 32 | 32 | 7 | 80 | 98 |
56 | 50 | 65 | 80 | 9 | 20 | 30 | M5 | 165 | 213 | 193 | 74 | 92 | 92 | 2 | 34 | 58 | 8,5 | 110 | 110 |
63 | 60 | 75 | 90 | 11 | 23 | 25 | M5 | 176 | 241 | 218 | 85 | 92 | 92 | 2 | 34 | 58 | 9 | 115 | 123 |
71 | 70 | 85 | 105 | 14 | 30 | 25 | M6 | 192 | 276 | 246 | 98 | 92 | 92 | 2,5 | 40 | 52 | 12 | 124 | 138 |
80 | 80 | 100 | 120 | 19 | 40 | 30 | M6 | 218 | 317 | 277 | 116 | 110 | 110 | 3 | 50 | 60 | 12 | 141 | 156 |
90S | 95 | 115 | 140 | 24 | 50 | 33 | M8 | 233 | 342 | 292 | 125 | 110 | 110 | 3 | 50 | 60 | 15 | 146 | 176 |
90L | 95 | 115 | 140 | 24 | 50 | 33 | M8 | 233 | 366 | 316 | 125 | 110 | 110 | 3 | 50 | 60 | 15 | 146 | 176 |
100 | 110 | 130 | 160 | 28 | 60 | 40 | M8 | 253 | 430 | 370 | 155 | 110 | 110 | 3,5 | 55 | 55 | 16,5 | 157 | 194 |
112 | 110 | 130 | 160 | 28 | 60 | 45 | M8 | 278 | 466 | 406 | 175 | 110 | 110 | 3,5 | 55 | 55 | 16,5 | 170 | 220 |
132S | 130 | 165 | 200 | 38 | 80 | 50 | M10 | 323 | 540 | 460 | 220 | 124 | 124 | 3,5 | 62 | 62 | 18 | 195 | 256 |
132L | 130 | 165 | 200 | 38 | 80 | 50 | M10 | 323 | 580 | 500 | 220 | 124 | 124 | 3,5 | 62 | 62 | 18 | 195 | 256 |
160S | 180 | 215 | 252 | 42 | 110 | 90 | M12 | 387 | 730 | 620 | 266 | 185 | 172 | 4 | 86 | 86 | 18 | 232 | 310 |
160L | 180 | 215 | 252 | 42 | 110 | 90 | M12 | 387 | 774 | 664 | 266 | 185 | 172 | 4 | 86 | 86 | 18 | 232 | 310 |

TYPE MEC | a | b | c | d | e | f | g | h | t |
50 | 9 | 20 | M4 | 10 | 14 | 15 | 3 | 3 | 10,2 |
56 | 9 | 20 | M4 | 10 | 14 | 15 | 3 | 3 | 10,2 |
63 | 11 | 23 | M4 | 10 | 14 | 15 | 4 | 4 | 12,5 |
71 | 14 | 30 | M5 | 13 | 18 | 20 | 5 | 5 | 16 |
80 | 19 | 40 | M6 | 16 | 22 | 30 | 6 | 6 | 21,5 |
90 | 24 | 50 | M8 | 20 | 28 | 35 | 8 | 7 | 27 |
100/112 | 28 | 60 | M10 | 25 | 35 | 45 | 8 | 7 | 31 |
132 | 38 | 80 | M12 | 32 | 44 | 60 | 10 | 8 | 41 |
160 | 42 | 110 | M16 | 32 | 44 | 90 | 12 | 8 | 45 |